B.X. Press Cidery looks to expand
B.X. Press Cidery has applied to the Liquor and Cannabis Regulation Branch (LCRB) for changes to their existing cider manufacturing facility liquor licenses related to the property located at 4667 East Vernon Road.
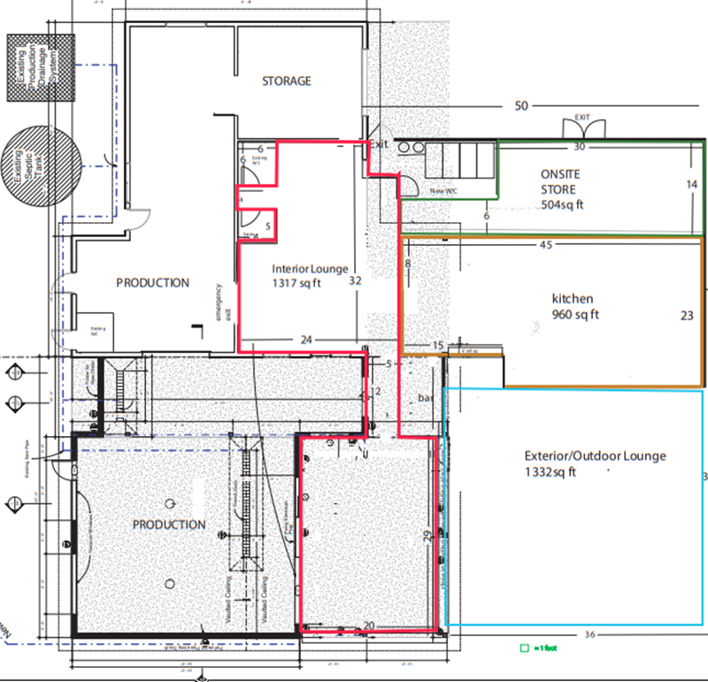
The cidery uses about half of their apple crop to make cider, and in 2019 they added wood fire pizza and live music. They hope to have the pizza operation going seven nights a week and continue live music.
“We really didn’t have the capacity during inclement weather to operate. We would really like to extend our season into the spring and fall, not just June, July and August,” co-owner Melissa (Missy) Dobernigg said. “It would be nice to have a better kitchen set-up as well.”
The proposed changes include the addition of a new outdoor patio, structural alterations to an approved lounge and a special events area endorsement, and a structural alteration to the manufacturing facility.












